Crescendo

Twee laags woning
Ons model Crescendo is een nieuw ontworpen 2 laags woning dat voldoet aan de allerhoogste bouwkwaliteitseisen voor een betaalbare totaal prijs.
Dit is bij Starline Home altijd inclusief een Bruynzeel keuken, Sanicare badkamer meubelen, wand afwerking met glasweefselbehang, Agnes plafond en laminaat vloer.
De woning is voorzien van hoogwaardige Stemid kunstofbekleding wat praktisch niet van echt hout is te onderscheiden. Dit in combinatie met van der Zanden steenstrip, waarin u zelf in overleg met de gemeente de verdeling tussen steen en kunststof kunt bepalen.
Eco-baksteenstrips
Het bekleden van gevels van een Starline Home woning met gezaagde baksteenstrips vormt een duurzaam en ecologisch alternatief voor het gebruik van traditionele bakstenen. U kunt namelijk met hetzelfde aantal stenen een groter oppervlakte afwerken en er is meer ruimte voor isolatie. Dit is al een slimme en slanke bouwtechnische keuze, maar het kan zelfs nog een stukje milieuvriendelijker. De ECO-baksteenstrips gaan nog een stap verder in efficiëntie dan de bestaande gezaagde steenstrips. Ze worden niet uit volle stenen verzaagd, maar rechtstreeks in speciale mallen gevormd en gebakken als strip. Daardoor is er nog minder verlies van materiaal, grondstoffen en energie. Met de nieuwe ECO-steenstrippen hebt u een driedubbele winst: op ecologisch, esthetisch én financieel vlak.










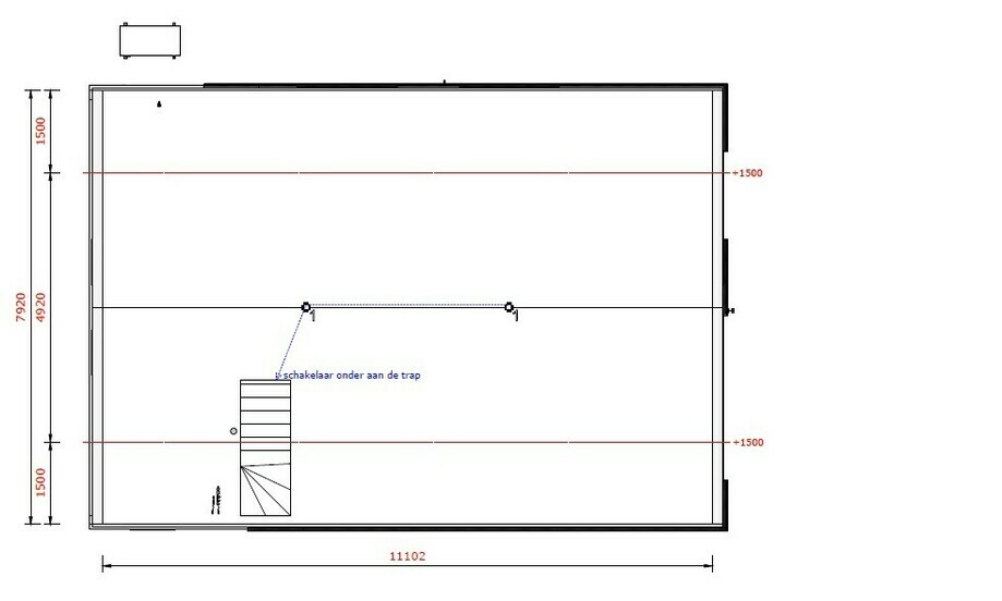
Plattegrond Crescendo XL145

Download plattegrond


Voordeel van prefab bouw
- Snellere bouwtijd: De bouwtijd op locatie wordt teruggebracht tot enkele weken, aangezien 98% van de woning al in de fabriek is gemaakt.
- Kostenbesparend: Efficiënter materiaalgebruik, lagere arbeidskosten en een kortere bouwtijd maken prefab bouwen vaak goedkoper. De kans op onverwachte meerkosten is kleiner.
- Constante hoge kwaliteit: Productie in een gecontroleerde fabriekshal vermindert de kans op fouten die veroorzaakt kunnen worden door weersomstandigheden zoals regen, wind of vorst.
- Duurzaam en energiezuinig: Prefab woningen kunnen standaard voorzien worden van uitstekende isolatie en energiezuinige installaties, zoals triple glas, warmtepompen en zonnepanelen.

Voordelen van de Starline Cresendo
- Betaalbaar
- Steenstrips
- Dak van 45%
- Verplaatsbaar per dieplader door geheel Europa
- Praktisch energieneutraal uitvoerbaar (BENG)
- Als prefab woning op bijna iedere bouwkavel te plaatsen
- Inclusief Bruynzeel keuken
- Moderne materialen en afwerking
- Kant- en klare levering
- Inclusief trap naar verdieping
- Leverbaar met felsdak of dakpannen
Maten en prijzen
- Lengte: van 9 meter tot 15,5 meter
- Breedte: van 4 meter tot 9 meter
- Hoogte: 6,87 meter
- Hoogte plafond: 2,60 meter begane grond - 3,52 meter eerste verdieping
- Dak: Felsdak, dakpannen of Joriside dak
- Vanafprijzen: XL 145 € 307.540,- incl. btw (prijspeil 1-1-2026) overige maten en prijzen zijn op aanvraag
- De vanafprijzen zijn inclusief Bruynzeel keuken stelpost € 7.445,-, badkamer met inloopdouche en toilet, standaard vloer- en wandafwerking, HR++ glas, warmtepomp en zonnepanelen
- Meerprijs t.b.v. BENG energieneutrale woning: dit is inclusief
- Meerprijs dakpan ca. € 24.450,- incl. btw
- Opties: Triple glas, hout-of pellet kachel, tweede toilet, accu, zonneboiler, PVC vloer, airco, WTW ventilatie, schuifdeuren.
- Transport- en installatiekosten: afhankelijk van de transportafstand en het formaat woning (kosten-indicatie circa 4% van de woningkosten excl. aansluitkosten nutsvoorzieningen buitenzijde woning)
- Fundering: stroken- of schroeffundering, prijs op aanvraag circa € 10.000,- incl. btw
- Installatiewerk nutsvoorzieningen buitenzijde woning: excl. prijs is op aanvraag bij installatiebedrijf
Download brochure
Contact
Wilt u kennismaken met de producten van STARLINE HOME en vrijblijvend een advies op maat?
Neem dan gerust contact met ons op via onderstaand contactformulier of telefoonnummer 0486 - 47 50 12