Eco Sun
Lessenaarsdak
De Eco Sun is een modern ontworpen prefab woning dat volledig duurzaam is en vanaf 2021 ook aan de BENG (Bijna Energieneutrale Gebouwen) norm voldoet. De woning heeft een plat dak en een speels lessenaarsdak waar zonnepanelen voldak in verwerkt worden. Het laagste punt is circa 2,45 meter oplopend naar 3,17 meter. Door gebruik te maken van o.a. triple glas, Nefit of Bosch luchtwarmtepomp en minimaal 30 zonnepanelen is de woning zo goed als energieneutraal en voldoet incl. zonnepanelen en luchtwarmtepomp aan de BENG norm.
Vier typen
De afmetingen van de woning bepaalt u zelf. In de standaardmaten hebben wij vier typen: Eco Sun S62 (62m²), Eco Sun M75 (75m²), Eco Sun L100 (100m²) en Eco Sun XL120 (120m²).
De breedte van de standaard typen is circa acht meter of op aanvraag minder. De lengte kan variëren van 7,5 tot 15 meter. Zo kunt u zelf kiezen hoe groot uw woning wordt: met één, twee of drie slaapkamers, met woonkeuken, etc.

Beton vloer
U kunt kiezen uit een houten 18 mm finsvuren multiplex afwerkvloer of een door STARLINE HOME speciaal ontwikkelde betonnen afwerkvloer van ca. 60 mm. Nadat de leidingen zijn geplaatst en vervolgens de vloerverwarming in een slakkenhuis legpatroon is aangebracht wordt het beton gestort. Deze Starline betonvloer geeft de woning extra stevigheid en verhoogt bovendien het rendement van de vloerverwarming en koeling en daarmee het algemeen wooncomfort.
Isolatie en energieprestaties
Op het gebied van isolatie behoort Starline Home tot de voorlopers binnen de prefab woningbouw. Dit wordt gerealiseerd door de toepassing van hoogwaardige isolatiematerialen in combinatie met triple beglazing (HR+++), waarmee een zeer hoge thermische prestatie van de gebouwschil wordt bereikt. De thermische kwaliteit van de constructie wordt uitgedrukt in de Rc-waarde (m²K/W), oftewel de warmteweerstand van bouwdelen. Een hogere Rc-waarde resulteert in een lagere warmtedoorgang, waardoor warmteverliezen in de winter worden beperkt en opwarming in de zomer wordt gereduceerd.
Het model Eco Sun is standaard uitgevoerd met een goed geïsoleerde gebouwschil. Het dak behaalt een Rc-waarde van meer dan 6,0 m²K/W. De gevels en vloer zijn uitgevoerd met een gemiddelde Rc-waarde van circa 5,0 m²K/W. In combinatie met luchtdichte detaillering en hoogwaardige kierdichting wordt ongecontroleerde ventilatie tot een minimum beperkt. De toegepaste triple beglazing heeft een lage U-waarde, wat bijdraagt aan een hoge isolatiewaarde van de transparante delen van de gevel. Dit geheel resulteert in een energiezuinige woning met een stabiel binnenklimaat, lage transmissieverliezen en een hoog thermisch comfort. De isolatiewaarden en bouwkundige opbouw maken het mogelijk om de woning verder te optimaliseren richting BENG-eisen of zelfs passiefhuisniveau, afhankelijk van de gekozen installatietechniek en aanvullende maatregelen.
Bijna EnergieNeutrale Gebouwen (BENG)
Op 1 januari 2021 hebben we in Nederland na 25 jaar de EPC als meetinstrument voor de energieprestatie van gebouwen verlaten en zijn we BENG als meetinstrument gaan gebruiken. De nieuwe regelgeving die moet zorgen voor Bijna EnergieNeutrale Gebouwen.
De STARLINE HOME prefab woningen kunnen allemaal voldoen aan de strenge nieuwe BENG norm. Wij maken al jaren gebruikt van de zeer stille en zuinige elektrische Nefit luchtwarmtepomp gecombineerd met vloerverwarming en voldoende zonnepanelen met SolarEdge optimizers en omvormer. Bovendien hebben al onze woningen een zeer hoge isolatiewaarde met hoogwaardige ventilatiesystemen waarbij tijdens de bouw ook sterk gelet wordt op het luchtdicht isoleren.
De Wet Voortgang Energietransitie (wet VET) is op 1 juli 2018 in werking getreden. De wet regelt onder meer dat de aansluitplicht voor aardgas vervalt. STARLINE HOME levert sinds 2018 al bijna 90% van haar woningen zonder aardgasaansluiting.

Stiller dan de stilste warmtepomp
Starline Home installeert de nieuwste Nefit Bosch Compress 5800I AW warmtepomp, een compleet nieuwe range monoblock warmtepompen op basis van gebruik van het natuurlijke koudemiddel R290, oftewel propaan. Belangrijke pluspunten: hoge aanvoertemperaturen tot 75 graden en super stil met een geluidsniveau van de 5 kW warmtepomp van slechts 28,5 dB(A).


Bruynzeel keukens
STARLINE HOME plaatst al ruim 30 jaar Bruynzeel keukens in haar woningen en deze worden geproduceerd in de keukenfabriek in Bergen op Zoom. De 250 enthousiaste medewerkers in deze fabriek dragen dagelijks zorg voor de kwaliteit en uitstraling van de keukenkasten. Van het lakken van de keukendeuren tot het boren van de scharnieren en van het in elkaar zetten van de kasten tot het verpakken voor een veilig transport: het gebeurt allemaal met veel zorg en aandacht, zodat je zo snel mogelijk van de nieuwe keuken kunt genieten. Niks is zo fijn als een mooie keuken die ook nog eens lekker werkt. Gewoon omdat alles klopt. Hij is handig ingedeeld, biedt voldoende bergruimte, is voorzien van slimme oplossingen en uitgevoerd in je favoriete stijl en kleuren.




Hoge uitvoering
Wij kunnen de Eco Sun ook in een hoge uitvoering leveren. Het lessenaarsdeel zal dan met plat dak worden uitgevoerd met daarbovenop zonnepanelen in een frame op circa 13 graden. Het split level idee van de Eco Sun is behouden gebleven met de mogelijkheid dit met stucwerk af te werken. De woninghoogte meet inclusief vloer en dak 407 cm af fabriek en hiervoor is, voorafgaand aan de offerte, een routeonderzoek nodig om dit hoge model over de weg te kunnen vervoeren.


Plattegrond Eco Sun S62

Plattegrond Eco Sun M75

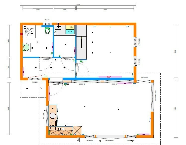
Plattegrond Eco Sun L100
Aanzichten en Doorsneden L100

Maten en prijzen
- Lengte: van 9 meter tot 15 meter
- Breedte: van 4 meter tot 8 meter (excl. overstek lessenaarsdak)
- Hoogte plafond: lessenaarsdak 2,45 meter oplopend tot 3,17 meter, plat dak 2,45 meter
- Dak: lessenaarsdak met EPDM, dakpanprofielplaat of moderne dakpan met verzonken dakgoten gecombineerd met een plat dak
- Vanafprijzen: S62 € 149.025,-, M75 € 179.665,-, L100 € 209.208,-, XL120 € 235.170,-, incl. btw (prijspeil 1-4-2026) overige maten en prijzen zijn op aanvraag
- De vanafprijzen zijn inclusief Bruynzeel keuken stelpost € 7.675,-, badkamer met douchecabine en toilet, standaard vloer- en wandafwerking, HR++ glas, cv-ketel met radiatoren
- Meerprijs t.b.v. BENG energieneutrale woning: luchtwarmtepomp, zonnepanelen met SolarEdge, vloerverwarming, ventilatiesysteem circa € 269,- per m² met een minimum van € 19.950,- per woning
- Opties: Triple glas, hout-of pellet kachel, tweede toilet, accu, zonneboiler, PVC vloer, airco, WTW ventilatie, schuifdeuren, inloopdouche etc.
- Transport- en installatiekosten: afhankelijk van de transportafstand en het formaat woning (kosten-indicatie circa 4% van de woningkosten excl. aansluitkosten nutsvoorzieningen buitenzijde woning)
- Fundering: op zandgrond d.m.v. aantal stelconplaten ca. € 4.200,-, overige op basis van strokenfundering, prijs op aanvraag
- Installatiewerk nutsvoorzieningen buitenzijde woning: excl. prijs is op aanvraag bij installatiebedrijf
Contact
Wilt u kennismaken met de producten van STARLINE HOME en vrijblijvend een advies op maat?
Neemt u dan gerust contact met ons op via onderstaand contactformulier of telefoonnummer 0486 - 47 50 12


